廣州口腔醫院裝修設計 鐵軍口腔醫院
面積 :1234平方米 / 地址 :廣東深圳市光明新區公明街道望盛路12號 / 點擊 :1301
鐵軍口腔醫院裝修設計采用現代簡約裝修風格,廣州裝修設計公司海博將客戶的企業文化融入至空間中,合理的功能布局,溫馨、舒適的色彩裝修設計搭配優美線條的造型設計,海博裝飾設計師把藝術時尚與便捷舒適找到了比較好的平衡點,讓您在身體不適時找到難得的平靜與放輕。

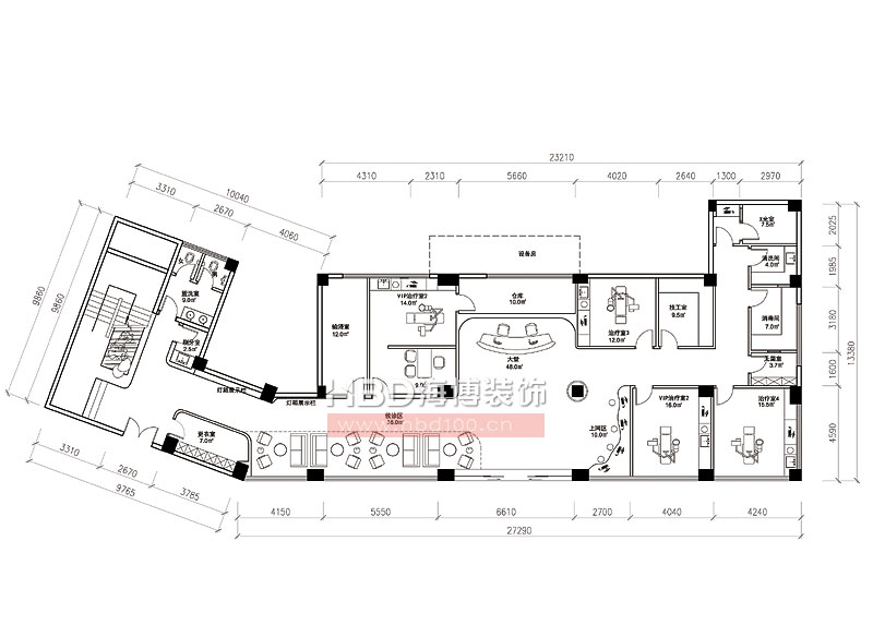
廣州口腔醫院裝修設計 鐵軍口腔醫院 一樓平面設計

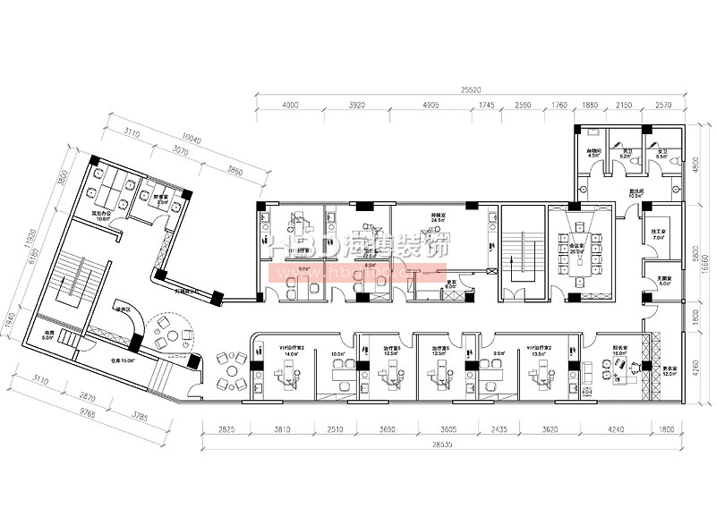
廣州口腔醫院裝修設計 鐵軍口腔醫院 二樓平面設計

廣州口腔醫院裝修設計 鐵軍口腔醫院 建筑外觀設計

廣州口腔醫院裝修設計 鐵軍口腔醫院 前臺設計

廣州口腔醫院裝修設計 鐵軍口腔醫院 過道設計

廣州口腔醫院裝修設計 鐵軍口腔醫院 治療室設計
- 上一案例:廣州美容整形醫院裝修設計 星鉑麗醫療
- 下一案例:廣州美容院連鎖店裝修設計 香蔓美肌機構
137-1150-4887
在線咨詢
